首页
公司介绍
关于浩美
前景与使命
工厂展示
为什么 浩美
人才资源....
产品
移动混凝土搅拌站
混凝土搅拌机
混凝土搅拌车
混凝土搅拌站
混凝土泵车
混凝土臂架输送泵
集装箱式搅拌站
自装车
服务
产品备用件
技术信息
新闻
联系我们
首页
产品
混凝土搅拌站
产品
混凝土搅拌站
HZS25
HZS35
HZS50
HZS60
HZS75
HZS90
HZS120
HZS150
HZS180
混凝土搅拌机
JS500
JS750
JS1000
JS1500
JS2000
JS3000
JS4000
JZC500
JZC350
SICOMA 2.0m3
SICOMA 3.0m3
SICOMA 4.0m3
混凝土搅拌运输车
HM6-D
HM8-D
HM9-D
HM10-D
HM12-D
HM14-D
HM16-D
混凝土移动搅拌站
YHZS25
YHZS60
YHZS75
混凝土输送泵
HBT60S1413-112R
HBT60S1816-110
HBT80S1813-110
HBT80S1813-145R
HBT90S1821-200
混凝土泵车
HDT5291THB-37/39/4
HDT5350THB-42/45
HDT5401THB-48/52
集装箱式混凝土搅拌站
集装箱式混凝土搅拌站
混凝土搅拌站
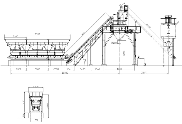
HZS50 混凝土搅拌站
国际流行的模块结构,容易安装
利用世界先进技术
搅拌系统拥有卓越的搅拌性能,高效率
主要电器元件都来自德国西门子
减少电力损耗
适用于小型建筑工程最少
技术参数
图纸
图册
视频
在线留言
规格
单位
参数
规格
m3/h
50
搅拌容量
m3
1
搅拌功率
kw
37
卸料高度
m
3.8(for customers choice)
骨料仓
数量
3
骨料仓容量y
m3
1.6
骨料最大称量
kg
1000
水泥最大称量
kg
800
水最大称量
kg
350
外加剂最大称量
kg
30
骨料称量误差
%
2
水称量误差
%
1
水泥称量误差
%
1
外加剂称量误差
%
1
水泥仓
_
可选项
水泥螺旋输送机
_
可选项
水泥仓容量y
_
可选项
控制模式
_
自动/半自动控制
产品型号
您的名字
电话:
邮箱地址:
留言: